







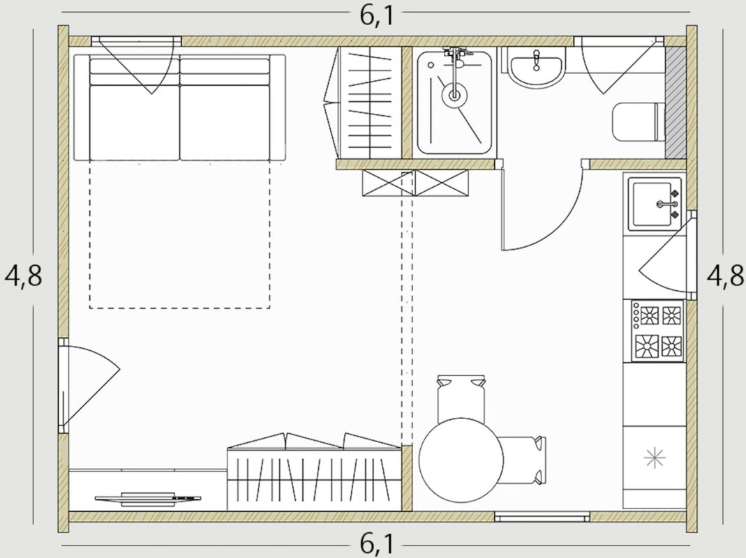
Plano
A pesar de su pequeño tamaño, Casa MINI es muy funcional e incluye todo lo necesario para vivir: salón, cocina, dormitorio y cuarto de baño y el espacios de almacenamiento.
- Sala
- Cocina - Comedor
- Zona de Dormitorio
- Baño


FACHADAS

Área Exterior: 28,01 m²
Área Útil Interior: 26,0 m²

Dimensiones Exteriores:
6,1 m x 4,8 m x 3 m de la altura
Dimensiones Interiores:
5,9 m x 4,4 m x 2,8 m de la altura
SECCIÓN
El sistema de unión estructural mediante cola de milano se ha probado durante siglos y se considera el más fiable y duradero en la construcción de casas de madera.
La casa está equipada con dos puertas y tres ventanas de PVC.

NUESTRAS VENTAJAS

Construcción Rápida
La rápida construcción de la casa está garantizada por la facilidad de montaje y la fuerte conexión, debido a la precisión de todos los elementos prefabricados de la casa.

Sin Fundación de Hormigón
Nuestras casas no necesitan una fundación rígida de hormigón. Al ser una estructura prefabricada, la casa se puede instalar sobre cualquier base sólida debidamente preparada.

Producto Acabado
Una casa de vigas multilaminadas no necesita más acabados decorativos en el interior y el exterior, es un producto acabado listo para vivir, lo que supone un ahorro considerable de tiempo y dinero.

EXTRAS

Puerta
Ventana
Terraza extendida
Marquesina
Pintura
Extras opcionales:
- Puerta
- Ventana
- Terraza extendida
- Marquesina
- Pintura
CONTÁCTANOS PARA COMENZAR TU PROYECTO
En nuestra empresa garantizamos una calidad excelente. Contamos con un equipo de expertos en este sector que trabajan para construir las casas según las necesidades de nuestros clientes. Por ello, cualquiera que sea tu necesidad, nosotros te ayudamos.